Make a Call : +8615559090996
Get A Estimate : senko@fjsenko.com
ALínea de producción de ladrillos de residuos sólidos Es un sistema que convierte residuos sólidos en ladrillos de construcción. Utiliza tecnología de vibración modulada por frecuencia y amplitud para lograr una alta densidad y ahorro energético en ladrillos reciclados sin cocer. Nuestra máquina para fabricar ladrillos de desecho puede producir diversos tipos de ladrillos reciclados sin cocer y moldearlos según las necesidades.
Línea de producción de ladrillos y bloques de residuos sólidos (Modelo:GFZX-2000)
Línea de producción para la fabricación de ladrillos totalmente automatizada, línea de producción para la fabricación de ladrillos de residuos sólidos, línea de producción de residuos sólidos de construcción.
Diseño de los proyectos:
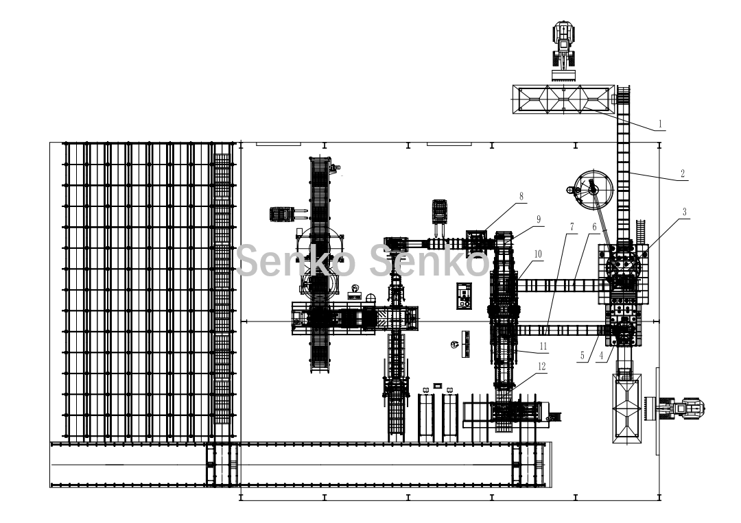
Solución uno: TEl horno de curado tiene un lado de apertura y es paralelo a otros equipos.

| 1, Máquina dosificadora | 2, Transportador de material crudo | 3, Mezclador de material base | 4, Mezclador de pigmentos | 5, Criba vibratoria | 6, Transportador de mezcla base |
| 7, Transportador de mezcla de pigmentos | 8, Carga de palets | 9, Alimentador de palets | 10, Máquina formadora | 11, Transportador | 12,Máquina apiladora |
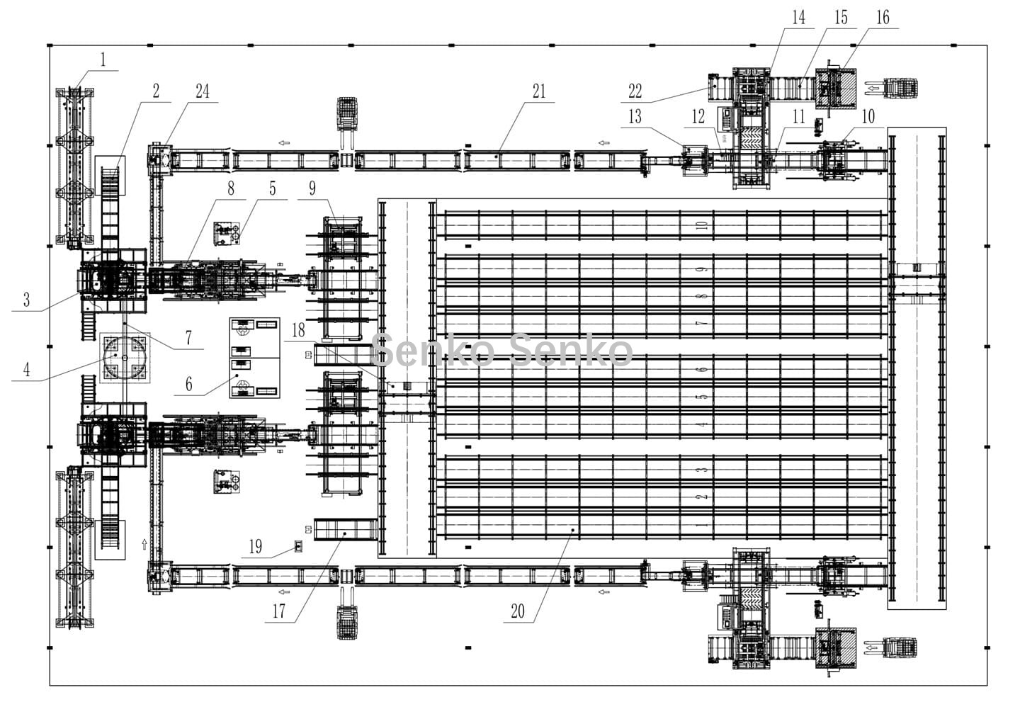
Solución dos: El horno de curado tiene una entrada y una salida. La entrada del horno de curado está orientada hacia el resto de máquinas.

| 1, Máquina dosificadora | 2, Transportador de material base | 3, Mezclador | 4, Silo de cemento | 5, Tanque de aceite |
| 6, armario de control electrónico | 7, Transportador en espiral | 8, Máquina formadora | 9, Paletizador con ladrillo | 10, Elevador de paletas |
| 11, Separador de palets de ladrillo | 12, Transportador de palets vacíos | 13,Paletizador sin ladrillo | 14, Apilador de ladrillos | 15, Transportador de pilas |
| 16, Máquina desforradora rotativa inferior | 17, Carro de transferencia | 18,RGV | 19, Estación de carga | 20, Horno de curado |
| 21.Sistema de reciclaje de palets vacíos | 22, Estante de almacenamiento de bandejas | 24, Carga hidráulica de palets |
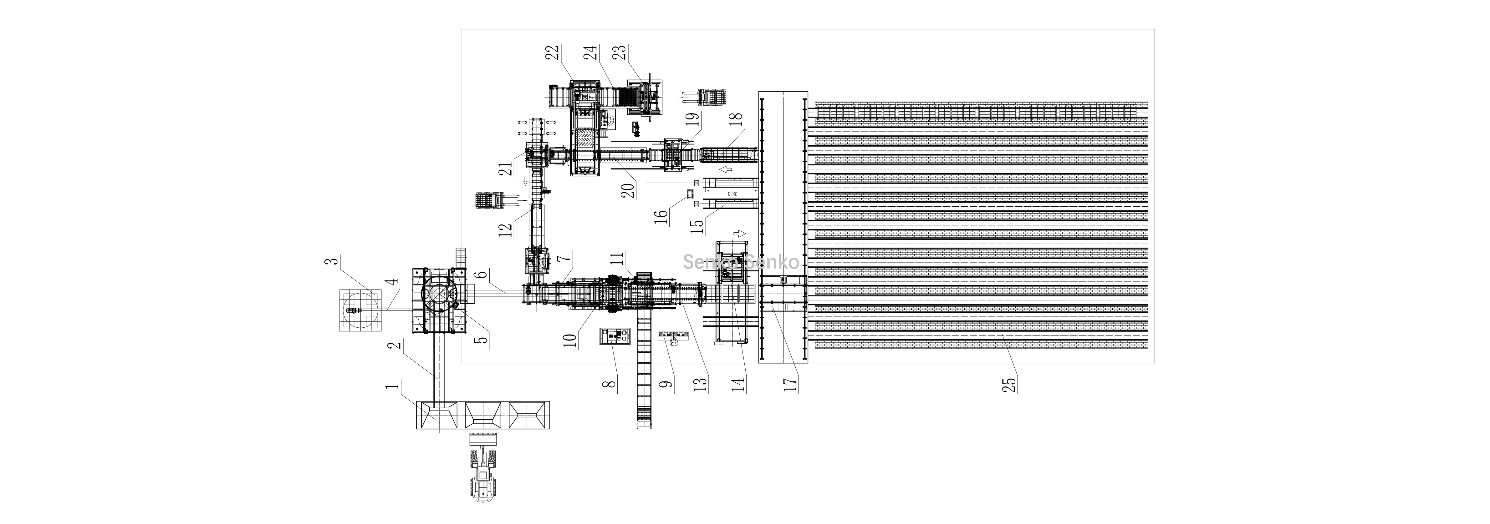
Solución tres:TEl horno de curado tiene un lado abierto y está orientado hacia el resto de máquinas.

| 1, Máquina dosificadora | 2, Transportador de material base | 3, Tanque de almacenamiento de material básico | 4, Transportador en espiral | 5, Mezclador de material básico |
| 6, Transportador de mezcla básica | 7, Carga de palets | 8, Estación hidráulica | 9, Sistema de control electrónico | 10, Alimentador de palets |
| 11,Máquina formadora | 12, Reciclaje de palets | 13, Transferencia de palets | 14, Paletizador | 15, carro de transferencia |
| 16, Estación de carga | 17, RGV | 18, Transportador de apilado de paletas | 19, Elevador de paletas | 20, Transportador de paletas de ladrillo |
| 21, Paletizador | 22, Máquina apiladora de ladrillos | 23, Empaquetadura rotatoria inferior | 24, Transportador de pilas | 25, Horno de curado |
Ventajas del producto:
1. Las materias primas son económicas, están ampliamente disponibles y tienen bajos costos de transporte. Las máquinas para fabricar ladrillos son relativamente económicas y cuentan con el respaldo de políticas nacionales, lo que genera importantes beneficios sociales y económicos.
2. Los ladrillos producidos tienen alta resistencia y buen rendimiento, ahorrando efectivamente recursos de tierra y promoviendo el ajuste estructural de la industria de materiales para muros de construcción.
Escenarios de aplicación

ETIQUETAS :